Großzügiges Einfamilienhaus mit Treppenlift in Kelkheim-Fischbach

Zu verkaufen | Erstbezug nach Komplettsanierung | 211 m² Wohnfläche | Barrierereduziert | Energieklasse A

🇩🇪 Deutsch | 🇬🇧 English
Erstbezug nach
Komplettsanierung
🌡️
Energieklasse A
Wärmepumpe
📄 Energieausweis
🏡
211 m² Wohnfläche
88 m² Nutzfläche
539 m² Grundstück
🛏️
6 Schlafzimmer
3 Badezimmer
19 Räume insgesamt

Objektbeschreibung

Hier können Sie Energiekosten vergessen – und die Stadt auch. Dieses großzügige Einfamilienhaus liegt am Ende einer stillen Sackgasse in Kelkheim-Fischbach, keine 30 Minuten von Frankfurt entfernt, und wurde 2026 von Grund auf saniert: mit einer High-End-Wärmepumpe von Zewotherm, dreifach verglasten Fenstern und erstklassiger Dämmung – Energieklasse A. Wer heute kauft, kauft ein Haus das nicht nur schön aussieht, sondern auch in 20 Jahren noch zeitgemäß ist. Auf drei Etagen mit 19 Räumen, liebevoll angelegtem Garten und eigenem Teich wartet hier echte Lebensqualität – ohne Kompromisse.

📍 Wichtige Informationen

Lage: Am Ende einer ruhigen Sackgasse am Ortseingang von Fischbach
Verfügbar ab: April 2026
Besichtigung: Nach Vereinbarung möglich
Kaufpreis: 1.050.000,- €

✨ Besondere Highlights

  • ✅ Erstbezug nach Komplettsanierung 2026
  • ✅ 3 komplett neu renovierte Badezimmer
  • ✅ Moderne Luft-Wasser-Wärmepumpe (Lambda EU13L)
  • ✅ Überwiegend dreifach verglaste Fenster
  • ✅ Hochwertige Wärmedämmung
  • ✅ Treppenlift vom Erdgeschoss ins Obergeschoss

🏠 Raumaufteilung

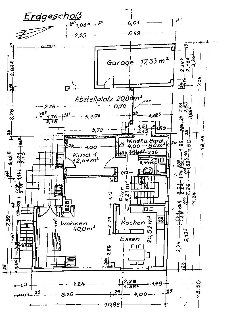
Erdgeschoss

  • Offene Küche mit Esszimmer – 20 m²
  • Großzügiges Wohnzimmer – 40 m²
  • Zusätzliches Zimmer – 12,5 m²
  • Badezimmer – 3,5 m²
  • Garderobe/Windfang – 3,5 m²

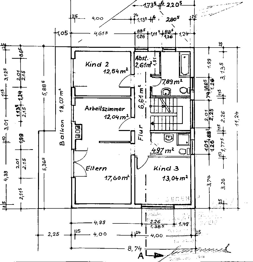
Obergeschoss

  • 4 Schlafzimmer – 12, 17, 12, 12 m²
  • 2 Badezimmer – 6,2 m² und 4,9 m²

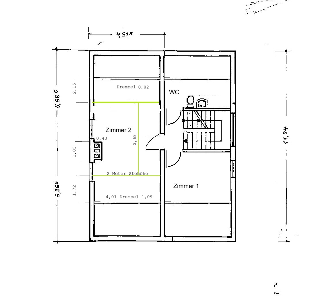
Dachgeschoss

  • 2 weitere Zimmer – 20 m² und 10 m²
  • Gäste-WC – 3 m²

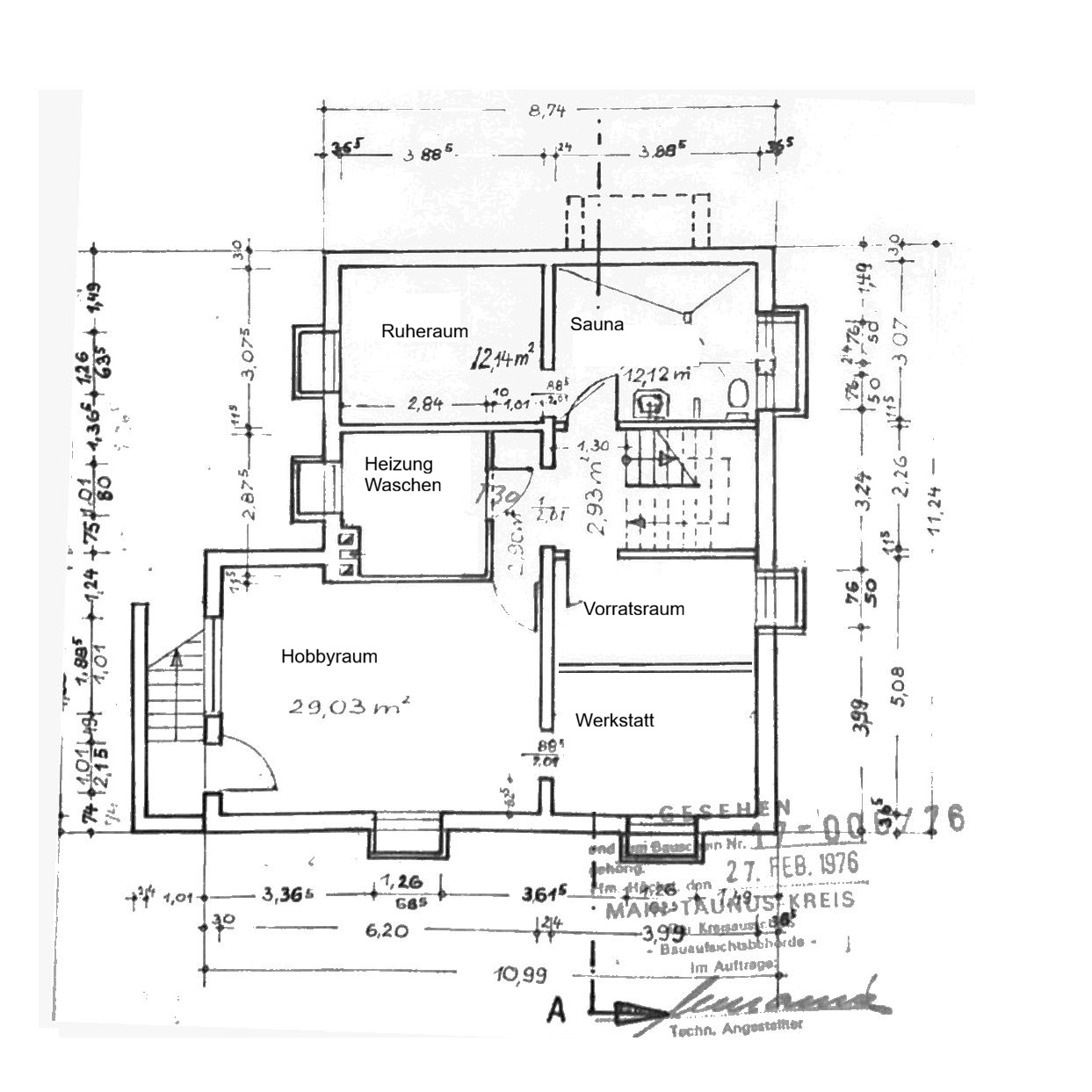
Kellergeschoss

  • Sauna – 11,2 m²
  • Werkstatt – 13 m²
  • Großer Hobbyraum – 29 m²
  • Ruheraum – 12 m²
  • Vorratsraum – 7 m²
  • Heizungsraum/Waschküche – 8 m²

🌳 Außenbereich & Lage

  • 🌺 Liebevoll angelegter Garten mit Teich – ideal für Hobbygärtner
  • 🔇 Absolute Ruhelage am Ende einer Sackgasse
  • 🌲 Naturnahes Wohnen mit schneller Anbindung an Kelkheim
  • 🚗 Parkplätze auf dem Grundstück

⚡ Energieeffizienz

Energieausweis: Klasse A

Dank moderner Wärmepumpe, dreifach verglasten Fenstern und hochwertiger Dämmung genießen Sie niedrige Heizkosten bei maximaler Wohnqualität.

📄 Energieausweis herunterladen (PDF)

📋 Eckdaten

Objekt

  • Objekttyp: Einfamilienhaus
  • Baujahr: 1976 (Saniert 2026)
  • Wohnfläche: 211 m²
  • Nutzfläche: 88 m²
  • Grundstück: ca. 539 m²

Räume

  • Schlafzimmer: 6
  • Wohnzimmer: 2
  • Küche mit Esszimmer: 1
  • Badezimmer: 3
  • Gäste-WC: 1
  • Kellerräume: 6

Ausstattung

  • Heizung: Wärmepumpe
  • Energie: Klasse A
  • Fenster: 3-fach verglast
  • Treppenlift: Vorhanden

💰 Preis

  • Kaufpreis: 1.050.000,- €
  • Provision: Keine (Privatverkauf)

📅 Verfügbarkeit

Ab April 2026

Ich freue mich auf Ihre Anfrage! Erzählen Sie mir gerne, was Sie an diesem Haus begeistert und was Sie planen. Besichtigungstermine sind nach Vereinbarung möglich.

Jetzt Kaufanfrage stellen